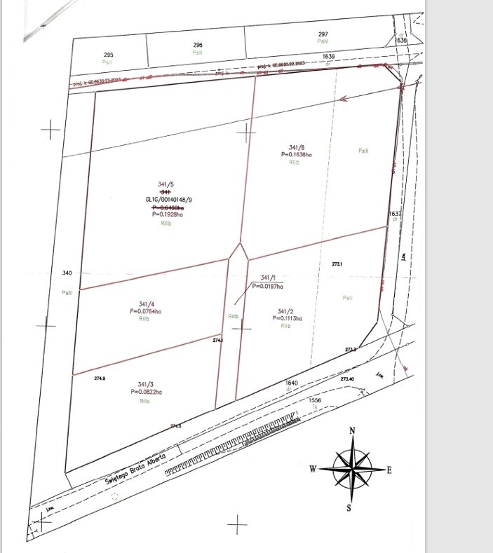
Działka na sprzedaż Gliwice, Bojków, Brata Alberta

791.00 m²
300,00 zł/m2
EURO-GS-365
Oblicz ratę kredytu Powiadom o spadku ceny

237 300 zł

Działka na sprzedaż

Szczegóły oferty

Symbol oferty EURO-GS-365
Powierzchnia 791,00 m²
Przeznaczenie działki budowlana

Opis nieruchomości

Na sprzedaż urokliwa, prosta działka z równo ukształtowanym terenem pod budowę wymarzonego domu.

Nieruchomość położona w spokojnej części Gliwic, w sąsiedztwie domów jednorodzinnych przy ul. Brata Alberta.
Powierzchnia działki to 791m.
Szybki dojazd do wszystkich miast aglomeracji śląskiej z uwagi na zjazd na autostradę A4 oraz A1.
W pobliżu kompleks handlowy, sklep budowlany, apteka, ścieżka rowerowa.
Dwie drogi dojazdowe do działki.
Cicha, spokojna okolica, zabudowa domów jednorodzinnych. Brak hałasu, z dala od miejskiego ruchu i tłoku.


Atrakcyjna cena!

Cena za m2 -- 300zł.

Spokojne miejsce, szybki dojazd do miasta,
Idealna na dom modułowy lub szkieletowy.
Do działki przynależy droga w 1/5 własności.
Idealna pod inwestycje lub budowę.
Na sprzedaż również działki sąsiadujące o innych powierzchniach (2000m2,1300m2,880m2,900m2)
Działki dzielone ( powierzchnia do zabudowy w cenie 300m2, pozostały teren w cenie 110m2 - idealny na ogród, garaż lub zagospodarowanie w innym charakterze).
Media: 
gaz w drodze
prąd w granicy działki

W celu uzyskania dodatkowych informacji zapraszam do kontaktu, chętnie odpowiem na wszystkie pytania
 tel.531 025 465

Lokalizacja nieruchomości

Kalkulatory

Kalkulator kredytowy

Wysokość raty

PLN
%

Kalkulator kosztów

Podatek od czynności cywilno-prawnych

Taksa notarialna
(opłata notarialna)

Wniosek o wpis do KW

VAT od prowizji
agencji nieruchomości

VAT od taksy notarialnej
(opłaty notarialnej)

Prowizja agencji nieruchomości

Wypisy aktu notarialnego

Razem

Uwaga: mogą wystąpić dodatkowe opłaty za założenie księgi wieczystej oraz ustanowienie hipoteki.

PLN
PLN
PLN
PLN
PLN
PLN
%
PLN

Manager

Proszę wprowadzić poprawne imię i nazwisko
Proszę wprowadzić poprawny numer telefonu
Proszę wprowadzić poprawny adres e-mail
Proszę zaznaczyć wymagane zgody
Rozwiąż równanie:
14 5
Niepoprawny wynik